Local Comercial en Bruto de 43 m2 en la zona de Garganes Altea
REF. A1993
Precio: 450 €
Características
Alquiler de local comercial en bruto en Altea, con una superficie de 43 m², se ubica en la zona de Garganes, una de las áreas más prácticas y transitadas de la localidad. Situado en una plaza con alta afluencia peatonal, se encuentra a pie de calle, rodeado de todos los servicios y comodidades, muy próximo al Polideportivo Municipal y a tan solo 5 minutos andando del Paseo Marítimo y de la playa, lo que garantiza una excelente visibilidad.
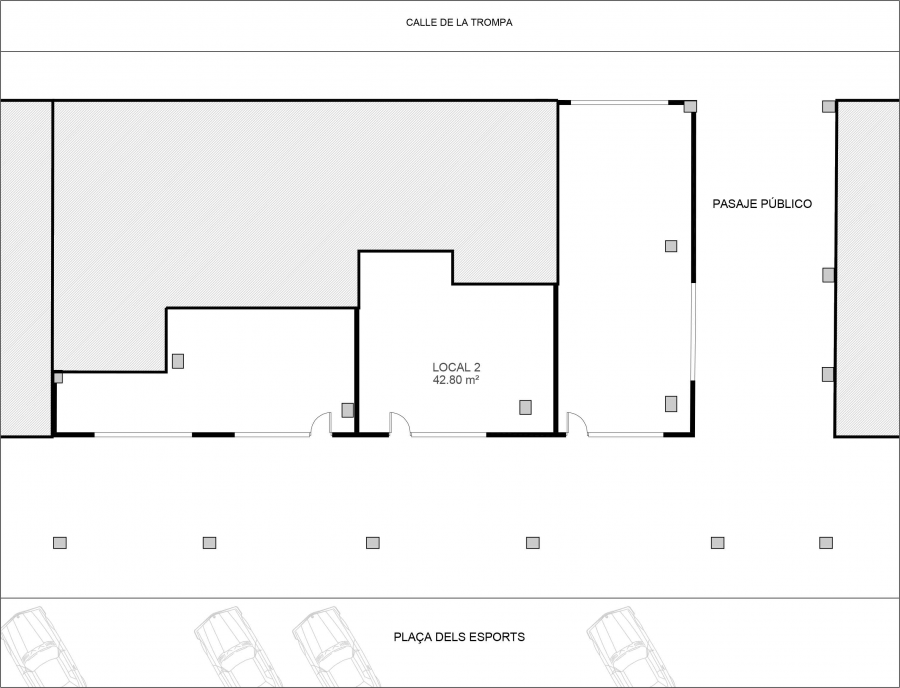
El local forma parte de un edificio de nueva construcción (2025) y se entrega en bruto y totalmente diáfano, ofreciendo una oportunidad única para adaptar el espacio a cualquier tipo de actividad comercial, profesional u hostelera. Destaca su amplio escaparate de 7 metros lineales, ideal para potenciar la imagen de marca y atraer la atención del público, así como la salida de humos, un valor añadido para proyectos de restauración o negocios que lo requieran.
Distribución del local:
- Espacio diáfano en bruto.
- Salida de humos.
- Escaparate de 7 metros lineales.
- Acceso directo desde la calle.
Gracias a su ubicación estratégica, su condición de local nuevo a estrenar y su versatilidad, este inmueble representa una excelente oportunidad de alquiler de local comercial en Altea, ideal para emprendedores y empresas que busquen visibilidad y flexibilidad. Con posibilidad de plaza de garaje (consultar).
ZONA GARGANES ALTEA
Garganes es una de las zonas más céntricas y prácticas de Altea, ideal para quienes buscan tener todos los servicios a pocos pasos, se encuentra a escasos minutos del centro. Aquí se concentran gran parte de los comercios locales, el Centro de Salud, así como importantes centros educativos como el Colegio Público Garganes y el Instituto Bellaguarda. También se encuentra el Polideportivo Municipal, zonas verdes y supermercados como Mercadona y Masymas, lo que hace de Garganes una zona muy cómoda para vivir todo el año. A solo 2 minutos andando de la Playa de l’Espigó y del Paseo Marítimo del Mediterráneo, combina la cercanía al mar con el dinamismo urbano
ACCESO A ALTEA
Altea disfruta de una ubicación estratégica en la Costa Blanca, entre Alicante (50 km) y Valencia (130 km), con excelentes conexiones por carretera a través de la N-332 y la AP-7 (salida 64).
Dispone de transporte público eficiente, incluyendo:
Autobuses interurbanos hacia Alicante, Benidorm, Calpe, Albir, entre otros.
Línea de TRAM que conecta con Benidorm y Alicante.
Además, cuenta con acceso directo a dos aeropuertos internacionales:
Alicante-Elche (Altet) a 57 km
Valencia (Manises) a 140 km
Todo ello convierte a Altea en un destino perfectamente comunicado, ideal tanto para residir como para disfrutar de vacaciones en un entorno mediterráneo privilegiado.
